











2025
1. Preis
Tramstrasse Suhr
Transformation eines Atelierhauses
Auftraggeberin
F.G. Pfister Immobilien AG, Suhr
Leistungen
Eingeladener Studienauftrag
Collaboration
Luca Selva Architekten ETH SIA BSA
Lars Ruge Landschaften
Visualisierungen
Julia Werlen
Innovation aus Kontinuität
Die konsequente Weiterentwicklung des Vorhandenen, macht die Philosophie der F. G. Pfister Stiftung zum Herzstück dieses Hauses.
Städtebau
Ausgangspunkt ist das bestehende Atelierhaus, dessen Substanz wir sorgfältig weiterbauen. Der neue, verputzte Baukörper aus Hanfsteinen entlang der Strasse trägt die Idee des verputzten Hauses in ortsbaulicher Kontinuität weiter, während sich die Gartenseite leicht und hölzern zeigt. Feine Holzbalkone und Laubengänge schaffen eine warme Atmosphäre zum begrünten Hofgarten. So entsteht ein stimmiges Ensemble, das in grosser Gelassenheit an die Geschichte von Möbel Pfister in Suhr anknüpft.
Das vielfältige Raum- und Nutzungsprogramm – mit Wohnungen, Bibliothek, Kaffeebar und Gemeinderäumen – bildet ein lebendiges Gefüge, das tagsüber wie abends den Ort belebt.
Typologie / Nutzung
Das Haus ist eng mit dem Ort und seinem vielfältigen Leben verbunden. Entsprechend ist das Erdgeschoss mit unterschiedlichen Nutzungen programmiert, die nach aussen wirken und den öffentlichen Raum beleben. Bibliothek, Café, Gemeinderäume und Wohnungen ergänzen sich zu einem lebendigen Ganzen. Durch die sorgfältig platzierten Eingänge wird die Tramstrasse aufgewertet und klar strukturiert.
Eine zentrale Präzisierung ist die entspannte Trennung der Zugänge. Die Bibliothek im bestehenden Atelierhaus bietet eine reiche Erlebniswelt und kann sich in die Laube öffnen. Das Café an der östlichen Ecke belebt mit seiner Aussenbestuhlung den Strassenraum, während die Gemeinderäume im hölzernen Gartenhaus direkt zugänglich sind. Parkplätze und Velostellplätze entlang der Anna-Heer-Strasse ergänzen das Angebot.
Die Laubenhalle wird zum gemeinschaftlichen Ort mit Zugang zum Garten und Erschliessung der Wohnungen über drei Treppen. Der Eingang zur Pfister-Holding liegt an der Tramstrasse: eine eigenes Foyer mit kleiner Ausstellung und Lift bildet eine klare, eigenständige Adresse.
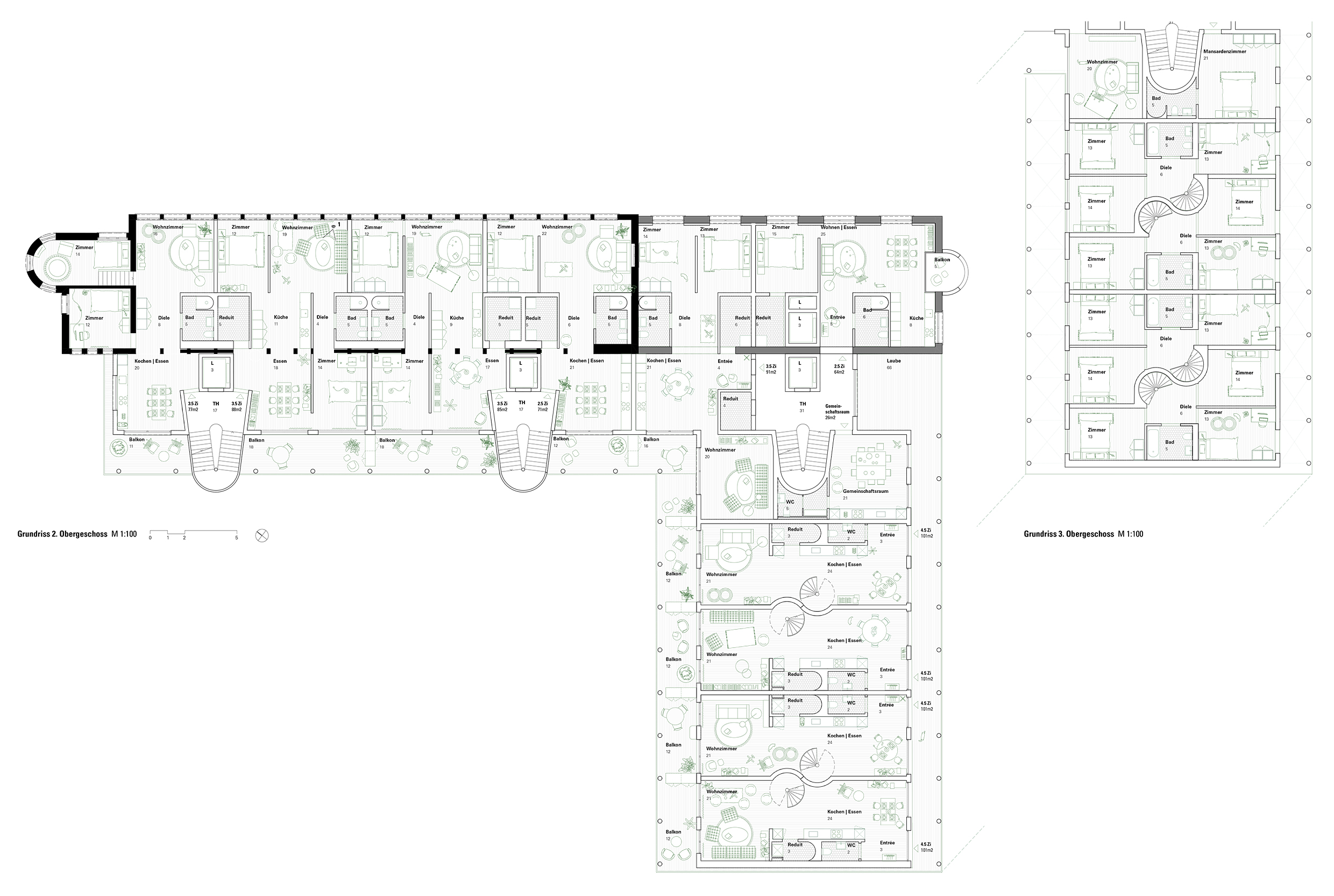
Wohnungen
Die 22 Wohnungen werden über drei Treppen aus der erdgeschossigen Laubenhalle erschlossen. Entlang der Tramstrasse liegen 2- und 3-Spänner, im Osten vier Maisonettewohnungen, deren Aufbau als „Town Houses“ besonders familiengerecht ist. Alle Wohnungen sind mindestens zweiseitig, teils dreiseitig orientiert. Unterschiedliche Grössen und Typen fördern eine lebendige Durchmischung und nachhaltige Nachbarschaften. Gemeinschaftsräume am Laubengang ergänzen das Angebot.
Die 18 Geschosswohnungen folgen einer einfachen haustechnischen Struktur und leben von der Dualität aus massivem Mauerwerk und leichtem Holzbau. Alle Wohnungen – ausser der östlichen Eckwohnung – sind auf Strasse und Garten orientiert und verfügen über grosszügige, differenzierte Grundrisse sowie private Terrassen.
Die vier Maisonettewohnungen kombinieren grosszügige Wohnräume mit kompakten Schlafgeschossen und gut proportionierten Aussenräumen. Schrankwände zwischen den Balkonen dienen als funktionale Trennungen.
Konstruktion
Zentral für das Konzept sind zukunftsgerichtete, nachhaltige Konstruktionen, die ökologische (Langlebigkeit, niedriger CO₂-Fussabdruck), ökonomische (low-tech, unterhaltsarm) und soziale Aspekte (Kontinuität, Garten als Klimakammer) verbinden. Auf geringe Emissionen und zirkuläres Bauen wird konsequent geachtet.
Das Atelierhaus wird maximal geschont; neue Installationen und Steigzonen liegen in den Neubauteilen. Eine mineralische Dämmung mit Aerogelputz und Trockenaufbauten ermöglicht eine sanfte Erneuerung.
Der strassenseitige Anbau und die Aufstockung bestehen aus Hanfsteinmauerwerk mit Brettstapeldecken und Sumpfkalkputz. Sichtbare Übergänge zum Bestand zeigen die Spuren des Weiterbauens und prägen die Atmosphäre.
Das Gartenhaus ist als Holzbau mit getrichener Holzfassade konzipiert. Laubengänge und Balkone stehen als eigenständige, leichte Konstruktionen auf Stützen.
So entsteht ein stimmungsvolles Ganzes: zur Strasse hin mineralisch und kräftig, zum Garten filigran und organisch – im Dialog mit dem hellen Baumhain.
Luca Selva Architekten ETH SIA BSA
Lars Ruge Landschaften
Visualisierungen
Julia Werlen
Innovation aus Kontinuität
Die konsequente Weiterentwicklung des Vorhandenen, macht die Philosophie der F. G. Pfister Stiftung zum Herzstück dieses Hauses.
Städtebau
Ausgangspunkt ist das bestehende Atelierhaus, dessen Substanz wir sorgfältig weiterbauen. Der neue, verputzte Baukörper aus Hanfsteinen entlang der Strasse trägt die Idee des verputzten Hauses in ortsbaulicher Kontinuität weiter, während sich die Gartenseite leicht und hölzern zeigt. Feine Holzbalkone und Laubengänge schaffen eine warme Atmosphäre zum begrünten Hofgarten. So entsteht ein stimmiges Ensemble, das in grosser Gelassenheit an die Geschichte von Möbel Pfister in Suhr anknüpft.
Das vielfältige Raum- und Nutzungsprogramm – mit Wohnungen, Bibliothek, Kaffeebar und Gemeinderäumen – bildet ein lebendiges Gefüge, das tagsüber wie abends den Ort belebt.
Typologie / Nutzung
Das Haus ist eng mit dem Ort und seinem vielfältigen Leben verbunden. Entsprechend ist das Erdgeschoss mit unterschiedlichen Nutzungen programmiert, die nach aussen wirken und den öffentlichen Raum beleben. Bibliothek, Café, Gemeinderäume und Wohnungen ergänzen sich zu einem lebendigen Ganzen. Durch die sorgfältig platzierten Eingänge wird die Tramstrasse aufgewertet und klar strukturiert.
Eine zentrale Präzisierung ist die entspannte Trennung der Zugänge. Die Bibliothek im bestehenden Atelierhaus bietet eine reiche Erlebniswelt und kann sich in die Laube öffnen. Das Café an der östlichen Ecke belebt mit seiner Aussenbestuhlung den Strassenraum, während die Gemeinderäume im hölzernen Gartenhaus direkt zugänglich sind. Parkplätze und Velostellplätze entlang der Anna-Heer-Strasse ergänzen das Angebot.
Die Laubenhalle wird zum gemeinschaftlichen Ort mit Zugang zum Garten und Erschliessung der Wohnungen über drei Treppen. Der Eingang zur Pfister-Holding liegt an der Tramstrasse: eine eigenes Foyer mit kleiner Ausstellung und Lift bildet eine klare, eigenständige Adresse.
Wohnungen
Die 22 Wohnungen werden über drei Treppen aus der erdgeschossigen Laubenhalle erschlossen. Entlang der Tramstrasse liegen 2- und 3-Spänner, im Osten vier Maisonettewohnungen, deren Aufbau als „Town Houses“ besonders familiengerecht ist. Alle Wohnungen sind mindestens zweiseitig, teils dreiseitig orientiert. Unterschiedliche Grössen und Typen fördern eine lebendige Durchmischung und nachhaltige Nachbarschaften. Gemeinschaftsräume am Laubengang ergänzen das Angebot.
Die 18 Geschosswohnungen folgen einer einfachen haustechnischen Struktur und leben von der Dualität aus massivem Mauerwerk und leichtem Holzbau. Alle Wohnungen – ausser der östlichen Eckwohnung – sind auf Strasse und Garten orientiert und verfügen über grosszügige, differenzierte Grundrisse sowie private Terrassen.
Die vier Maisonettewohnungen kombinieren grosszügige Wohnräume mit kompakten Schlafgeschossen und gut proportionierten Aussenräumen. Schrankwände zwischen den Balkonen dienen als funktionale Trennungen.
Konstruktion
Zentral für das Konzept sind zukunftsgerichtete, nachhaltige Konstruktionen, die ökologische (Langlebigkeit, niedriger CO₂-Fussabdruck), ökonomische (low-tech, unterhaltsarm) und soziale Aspekte (Kontinuität, Garten als Klimakammer) verbinden. Auf geringe Emissionen und zirkuläres Bauen wird konsequent geachtet.
Das Atelierhaus wird maximal geschont; neue Installationen und Steigzonen liegen in den Neubauteilen. Eine mineralische Dämmung mit Aerogelputz und Trockenaufbauten ermöglicht eine sanfte Erneuerung.
Der strassenseitige Anbau und die Aufstockung bestehen aus Hanfsteinmauerwerk mit Brettstapeldecken und Sumpfkalkputz. Sichtbare Übergänge zum Bestand zeigen die Spuren des Weiterbauens und prägen die Atmosphäre.
Das Gartenhaus ist als Holzbau mit getrichener Holzfassade konzipiert. Laubengänge und Balkone stehen als eigenständige, leichte Konstruktionen auf Stützen.
So entsteht ein stimmungsvolles Ganzes: zur Strasse hin mineralisch und kräftig, zum Garten filigran und organisch – im Dialog mit dem hellen Baumhain.
